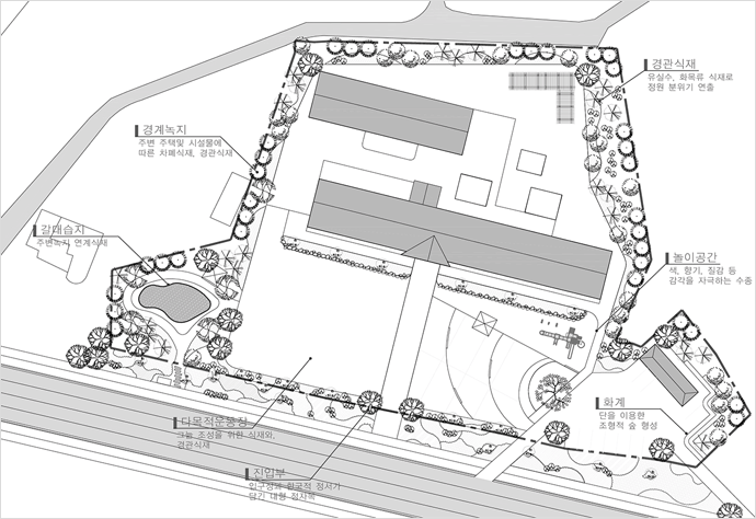
경희대학교 예술디자인연구원 농촌토털디자인
 
 
 
 
 

부문별디자인 계획 및 사례

 
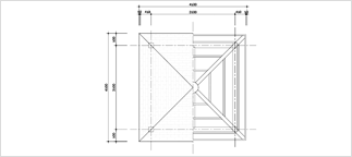
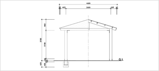
2. 방문자센터 정비