경희대학교 예술디자인연구원 농촌토털디자인
 
 
 
 
 

부문별디자인계획 및 사례

 
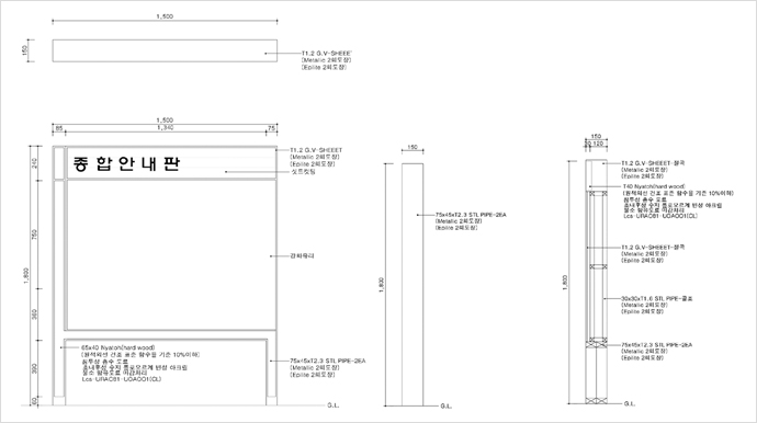
3. 마을길 정비